string(4) "2827"

Промышленный комбинированный котел 150 кВт на дровах и угле в Челябинске

Версия
для печати
В наличии на складе Цена в рублях с НДС 265 000
Получите скидку
у менеджера
Цена на промышленный комбинированный котел 150 кВт на дровах и угле с доставкой от 265 000 рублей с НДС
ТопливоУголь, Дрова, Твердое
Вид топкиКолосники, ОУР
Максимальная тепловая мощность, кВт150
Отапливаемая площадь, м²860-1600
Доставка ТК в г. Челябинск и по России
Безналичный расчет
Подобрать котел по мощности
Опросный лист
  • Технические
    характеристики
  • Описание
    товара
  • Комплект
    поставки
  • Дополнительно
    потребуется
  • Подключение и
    монтаж
  • Сертификаты и
    гарантии
  • Отзывы о
    продукции
  • Видео
    обзор
  • Подбор
    котла
  • Компактная модель удобно размещается в маленьких помещениях котельных
  • Сжигает уголь и дрова типа полено, кусковые отходы деревопереработки
  • Загрузка угля производится через нижнюю дверцу и закладка дров через верхнюю
  • Работает без вентилятора и дымососа
  • Изготавливается из трубы сталь 10 и 20
  • Возможна установка дымовой трубы на каркас котла

Технические характеристики котла 150 кВт уголь дрова

Тип Котел уголь дрова
Тип отопительного котла Комбинированный
Бренд HeatExpert
Марка Котел 150 кВт уголь дрова
Топливо Уголь, Дрова, Твердое
Вид топки Колосники, ОУР
Максимальная тепловая мощность, МВт 0.15
Максимальная тепловая мощность, кВт 150
Максимальная тепловая мощность, Гкал 0.13
Диапазон регулирования мощности, % 50-100
Низшая теплота сгорания проектного топлива, кКал/кг 5230
Низшая теплота сгорания резервного топлива, кКал/кг 2440
Влажность топлива, % 40
КПД котла на УГЛЕ, не менее, % 80
КПД котла на ДРОВАХ, не менее, % 65
Расход УГЛЯ среднечасовой за отопительный сезон, кг/ч 22.9
Расход ДРОВ среднечасовой за отопительный сезон, кг/ч 60.3
Расход ДРОВ среднечасовой за отопительный сезон, м³/ч 0,1
Расход УГЛЯ при максимальной нагрузке котла, кг/ч 40
Расход ДРОВ при максимальной нагрузке котла, кг/ч 105.5
Расход ДРОВ при максимальной нагрузке котла, м³/ч 0.3
Расход условного топлива, кг/ч 34
Максимальная температура воды на выходе из котла, °C 115
Давление воды, не более, МПа (кгс/см²) 0.15-0.3 (1.5-3)
Номинальный расход теплоносителя, м³/ч 5
Расход теплоносителя через котел min-max, м³/ч 4-7
Гидравлическое сопротивление при номинальном расходе, МПа (кгс/cм²) не более 0.07 (0.7)
Аэродинамическое сопротивление, Па (мм. вод. ст.) 80 (8.16)
Разряжение в топочной камере, Па (мм. вод. ст.) 20-40 (2-4)
Объем уходящих газов, м³/ч 850
Температура уходящих газов, не более, °С 220
Тяга Уравновешенная
Водяной объем котла, л 250
Объем топочной камеры, м³ 0.97
Размер топочной камеры, длина*ширина*высота, мм 990х700х1400
Активная площадь решетки горения, м² 0.69
Присоединительные размеры по водяному тракту, Ду 50
Присоединительные размеры газохода уходящих газов, ширина*высота / сечение, мм/м² 175х175/0.03
Габаритные размеры котла, длина*ширина*высота, мм 1590х950х1885
Масса, кг 1000
Конструкция котла газоплотная, трубная
Количество контуров Одноконтурный
Размещение Напольный
Тип камеры сгорания Открытый
Управление Электронное
Принцип работы твердотопливного котла Классический
Энергонезависимый Нет
Тип питания Трехфазное
Встроенный циркуляционный насос Нет
Встроенный расширительный бак Нет
Энергоэффективность Высокая
Отапливаемая площадь, м² от 860 до 1600
Отапливаемый объем, м³ от 2600 до 5000

Водогрейный котел отопления комбинированный 150 кВт на дровах на угле

  • мощность при работе на угле 150 КВт, 0.15 МВт, 0.13 ГКал;
  • мощность при работе на дровах 150 КВт, 0.15 МВт, 0.13 ГКал;
  • максимальная температура воды 115 °С;
  • топливо – основное каменный и бурый уголь;
  • топливо – резервное дрова;
  • давление воды не более 0,6 МПа;
  • отапливаемая площадь котла от 860 до 1600 кв. м, отапливаемый объем от 2600 до 5000 м3 (в зависимости от максимальной температуры в регионе эксплуатации). Проверить или подобрать мощность котла на угле дровах в Челябинске или другом городе вы можете по ссылке.

Отопительный котел угольно дровяной комбинированный 150 кВт применяется для отопления административных, производственных зданий, производственных помещений, промышленных котельных, устанавливаются для работы в сушильных камерах на лесоперерабатывающих предприятий.

Отопительный котел угольно дровяной комбинированный 150 кВт особенности

Модели твердотопливного котла на дровах и угле 150 кВт предназначены для отопительных котельных, в которых используются оба вида твердого топлива.

Так как уголь и дрова различны по теплотворным характеристикам топлива, конструкция котла также должна быть различна. При выборе такой универсальной конструкции необходимо руководствоваться тем, какое топливо будет основным, какое резервным. При применении универсальных моделей котлов необходимо учитывать, что номинальная мощность 150 кВт будет достигаться только при работе на основном топливе угле, при работе на резервном топливе дровах мощность будет меньше.

Устройство угольно дровяного котла 150 кВт

Конструкция комбинированного котла на угле дровах 150 кВт состоит из топки и конвективной части. На фронте имеется две топочные дверки, расположенные одна над другой. Нижняя применяется при работе на угле, верхняя для дров. Дрова — это более габаритное топливо и для получения требуемой мощности необходима загрузка большого по объему количества древесного топлива.

По техническому заданию мы можем изготовить блоки котла с одной большой загрузочной дверцей, такие модели могут работать как утилизаторы для сжигания поддонов, досок и прочих древесных отходов.

Двухтопливный котел 150 кВт уголь дрова для отопления изготавливается из стальных труб диаметром 57 толщиной стенки 3- 3,5 мм сталь 10. Обмуровка изготавливается из профильной трубы, уголка и швеллера. Тепловая изоляция состоит из плиты ПТЭ. Наружная обшивка выполнена из полимерного оцинкованного листа. Для очистки конвективных секций в обмуровке предусмотрены съёмные люки.

Горячие газы выходят из топки вверху топочной камеры и поступают в конвективные секции. Секции конвективных пакетов устанавливаются двумя блоками. Горячие газы из котельного блока выходят в задней части сверху.

Отопительный твердотопливный котел для дров и угля мощностью 150 кВт обеспечивает быстрый нагрев воды и выход на требуемую мощность. Локальные перегревы отдельных зон поверхностей нагрева исключаются точностью производимых расчетов гидравлики. Дренажи и воздушники производят дренирование трубной системы от шлама и удаление скапливающего воздуха.

Топка водогрейного промышленного котла на дровах 150 кВт может быть выполнена из колосниковой топки или беспровальной водоохлаждаемой.

Колосниковая топка

В нижней части топки укладываются чугунные колосники с отверстиями для подачи воздуха и провала золы. На колосники укладывается топливо и происходит их горение. Колосниковая топка имеет традиционную широко известную конструкцию.

Беспровальная охлаждаемая топка

Беспровальная охлаждаемая топка – это низ топочной части котла. Рама топки представляет собой ряд труб, по которым движется нагреваемая в котле вода, между которыми вварены полосы металла с отверстиями для подачи воздуха в топку. На решетке происходит сгорание топлива. За счет движения теплоносителя и воздуха трубы топки охлаждаются. Маленькие отверстия в полосе не дают проваливаться в зольник недогоревшему топливу.

Универсальный комбинированный котел уголь дрова 150 кВт имеет преимущество перед традиционной колосниковой топкой за счет более равномерно распределяемой области подачи воздуха в слой топлива и отсутствия провала золы в нижний короб котла. Механический и химический недожег топлива в беспровальных топках меньше, чем в традиционных. Особенно эффективно применение беспровальных топок для сжигания низкокачественных углей и древесного топлива.

Купить котел 150 кВт уголь дрова

Для того чтобы купить комбинированный твердотопливный котел 150 кВт уголь дрова в Челябинске, вы можете сделать заявку в отдел сбыта по телефону (38-52) 29-97-41 (42), либо оформить заявку онлайн. Наши менеджеры дадут консультацию по подбору вспомогательного оборудования для выбранных вами моделей и рассчитают стоимость котла 150 кВт уголь дрова с доставкой до вашего региона.

Комплект поставки котла 150 кВт уголь дрова

Цена водогрейного котла 150 кВт уголь дрова в Челябинске включает в себя котельный блок в изоляции, колосники, вентили, затворы, манометры, термометры, вентилятор поддува и предохранительные клапаны. Ниже приведена подробная информация.

Дополнительное вспомогательное оборудование для работы котла 150 кВт уголь дрова

Для эффективной и надежной работы котла 150 кВт уголь дрова в вашей котельной вам потребуется дополнительное оборудование - автоматика ЩУК, дымосос, насос сетевой и подпиточный, золоуловитель (по желанию), газоходы и переходники для газового тракта, дымовая труба. Мы предлагаем рассмотреть типовые варианты комплектации.

В случае если у вас на объекте уже имеется насосное и тягодутьевое оборудование, мы можем проверить совместимость котла 150 кВт уголь дрова нашего производства и вашего оборудования.

Можем изготовить нестандартные узлы для выполнения быстрого монтажа котла - газоходы и узлы обвязки.

Типовую схему монтажа котла вы можете посмотреть во вкладке схемы подключения и монтаж.

Автоматика водогрейного котла обеспечивает:

  • ручной пуск котла;
  • ручное управление дутьевым вентилятором, дымососом и насосом;
  • автоматическое поддержание температуры путем управления вентилятором, подающим воздух для горения.

Автоматика водогрейного котла показывает:

  • температуру воды на выходе из котла;
  • температуру воды на входе в котел;
  • температуру дымовых газов на выходе из котла.

Автоматика водогрейного котла осуществляет автоматическую остановку с индикацией причины аварии при:

  • понижении расхода теплоносителя через котел;
  • понижении и повышении давления на выходе из котла;
  • повышении температуры воды на выходе из котла;
  • понижении разряжения в топке котла;
  • повышении температуры дымовых газов на выходе из котла;
  • понижении температуры дымовых газов на выходе из котла (остывание топки/затухание горения);
  • аварийном останове вентилятора и (или) дымососа;
  • исчезновении напряжения в цепях защиты.

Элементы для управления вентилятора и дымососом устанавливаются в блоке управления котлом.

Элементы управления насосом устанавливаются в общекотельном щите.

Цена 195 000 рублей с НДС

Используется в качестве подпиточного насоса в промышленных отопительных котельных

Цена 47 500 рублей с НДС

Используется в качестве подпиточного насоса в промышленных отопительных котельных

Цена 46 800 рублей с НДС

Используется в качестве сетевого насоса в промышленных отопительных котельных

Цена 141 300 рублей с НДС

Дымосос для удаления дымовых газов из котла.

Цена 55 900 рублей с НДС

Схемы подключения и монтаж котла 150 кВт уголь дрова

Водогрейный твердотопливный стальной отопительный промышленный комбинированный котел 150 кВт на дровах и угле, предназначен для получения горячей воды номинальной температурой на выходе из котла от 95 до 115 °С рабочим давлением до 0,6 (6,0) МПа (кгс/см), используемой в системах централизованного теплоснабжения на нужды отопления, горячего водоснабжения. Устанавливается в производственных, промышленных и отопительных котельных.

Схема подключения и монтажа водогрейного промышленного котла 150 кВт уголь дрова
Смотреть
Скачать

Схема подключения и монтажа котла 150 кВт уголь дрова

Монтаж водогрейного котла 150 кВт уголь дрова и вспомогательного оборудования в котельной должно производиться в соответствии с проектом и учетом требований СП 89.13330. 2016 «Котельные установки. Актуализированная редакция СНиП II-35-76» и «Правил устройства и безопасной эксплуатации паровых котлов с давлением пара не более 0,07 МПа (0,7 кгс/см2), водогрейных котлов и водоподогревателей с температурой нагрева воды не выше 388 К (115 С). Правильный монтаж котла – залог его надежной и долгой работы.

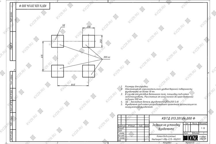
Чтобы правильно подключить промышленный комбинированный котел 150 кВт на дровах и угле в котельной необходимо оставить проемы для обслуживания оборудования во время эксплуатации. На представленной здесь схеме указаны их минимальные размеры. Кроме того, в данной примерной схеме монтажа водогрейных котлов и оборудования указан перечень минимально необходимого вспомогательного оборудования для правильной работы котла.

К вспомогательному оборудованию при подключении промышленного водогрейного котла на угле дровах относят - щит управления котлом, насос циркуляционный, насос подпиточной воды, бак запаса воды, расширительный мембранный бак, дымовую трубу, систему газоходов и дымосос, золоуловитель (по желанию).

В случае если подпиточная вода не соответствует по своим характеристикам требованиям к питательной воде, необходимо предусмотреть систему водоподготовки котловой воды.

Для котельных 1 категории, являющиеся единственным источником тепла системы теплоснабжения и обеспечивающие потребителей первой категории, не имеющих индивидуальных резервных источников тепла, необходимо предусмотреть полное резервирование оборудования – подключение 2 (двух) котлов, насосов, ТДМ. Пунктиром обозначено оборудование для резервирования.

Для котельных 2 категории, включающие в себя промышленные и производственные котельные резервирование нужно предусматривать по необходимости.

Схема тепловая котла
Смотреть
Скачать

Тепловая схема подключения

Образец тепловой схемы подключения котла 150 кВт уголь дрова и вспомогательного оборудования в котельной приведен на данной схеме. При эксплуатации очень важно грамотно осуществить подключение оборудования, установить все контрольно измерительные приборы, для контроля параметров работы котельной и запорную арматуру для оперативного переключения потока теплоносителя при плановой или аварийной остановке оборудования. Данную схему можно использовать как пример для разработки под свой объект или заказать у нас разработку индивидуальной схемы для вашей котельной.

Дополнительные услуги

Сертификат и качество котла 150 кВт уголь дрова КБД на угле, резервном топливе дровах HeatExpert

Водогрейные котлы производства Котельный завод "РЭП" соответствуют строгим стандартам качества и безопасности. Завод производит котлы в соответствии с требованиями ГОСТ 30735-3001 по Техническим Условиям завода.

Котлы имеют все необходимые сертификаты соответствия Техническим регламентам Таможенного союза:

  • ТР ТС 010/2011 «О безопасности машин и оборудования»
  • ТР ТС 032/2013 - «О безопасности оборудования, работающего под избыточным давлением».

Водогрейный промышленный комбинированный котел 150 кВт на дровах и угле имеет гарантийный срок 24 месяца и срок работы при соблюдении правил монтажа и эксплуатации оборудования 10 лет.

Сертификат на водогрейные котлы .jpg
Сертификат на водогрейные котлы
Знак товарный на водогрейные котлы HEATEXPERT .jpg
Товарный знак на водогрейные котлы HEATEXPERT

Отзывы о продукции

Отзыва о товаре пока нет, будьте первыми!

Промышленный комбинированный котел 150 кВт на дровах и угле используется для отопления производственных, административных и жилых зданий. Котельный завод производит и поставляет весь перечень сопутствующего котельного оборудования - насосы, газоходы, автоматику, дымососы, дымовые трубы, циклоны и прочее. Специалисты нашего завода бесплатно подберут сопутствующее оборудование, а в случае необходимости, выполнят проектирование, монтаж и пуско-наладку котельной установки.

Смотреть видеообзор на
Подобрать котел по мощности
Подберите необходимую мощность котла для вашего объекта
Тип здания
Регион
Населенный пункт
Вид топлива
Наружный объем здания (м3)
Отапливаемый подвал

Как подобрать мощность котла для вашего объекта

Подобрать мощность котла по площади важно учитывая не только площадь и объем здания, но и тип зданий и климатические данные региона.

На нашем сайте калькулятор расчета мощности котла учитывает тепло, требуемое на возмещение тепловых потерь через строительные конструкции и потери, вызываемые инфильтрацией (проникновением) наружного воздуха, через их неплотности и периодически открываемые двери.

Наружный строительный объем здания должен определяться умножением площади горизонтального сечения, взятого по внешнему обводу здания на уровне первого этажа на полную высоту здания, измеренную для панельных зданий: от уровня чистого пола (нулевой отметки) до верхней плоскости теплоизоляционного слоя чердачного покрытия, для остальных строений от уровня земли.

Расчетная температура воздуха в отапливаемых зданий принимается в зависимости от типа и назначения здания:

  • Гостиница, общежитие, административное здание, жилые дома + 20 °С;
  • Детские сады, ясли, поликлиники, амбулатории, диспансеры, больницы + 22 °С;
  • Высшие и средние специальные учебные заведения, общеобразовательные школы, школы интернаты, лаборатории, предприятия общественного питания, клубы, дома культуры + 16 °С;
  • Театры, магазины, пожарные депо + 15 °С;
  • Кинотеатры + 14 °С;
  • Гаражи + 10 °С;
  • Бани + 25 °С.

В случае если требуется отопление различных по типу зданий, теплопотребление каждого считается отдельно, полученные значения складываются и подобрать мощность котла нужно в соответствии с общей суммарной мощностью каждого отдельно стоящего задания.

Климатические условия вашего региона принимаются в соответствии с СП 131.13330 Строительная климатология. Данные по всем регионам России занесены в наш калькулятор расчета мощности котла.

Подобрать мощность котла по площади с учетом потребностей объекта в тепле на вентиляцию и горячую воду возможно только с более детальным расчетом. Его вы можете заказать в отделе сбыта котельного завода отправив заявку на электронный адрес sb@kvzr.ru или позвонив по телефонам (38-52) 29-97-41, 29-97-42.

Вопрос-ответ

  • Технические
    характеристики
  • Описание
    товара
  • Комплект
    поставки
  • Дополнительно
    потребуется
  • Подключение и
    монтаж
  • Сертификаты и
    гарантии
  • Отзывы о
    продукции
  • Видео
    обзор
  • Подбор
    котла
Документы завода
  • Сертификаты завода
  • Членство в СРО
  • Аттестованная технология сварки
  • Патенты на котельное оборудование
  • Товарные знаки
Смотреть все документы
Сертификат на водогрейные котлы на твердом и жидком топливе
Сертификат на водогрейные котлы на газе и жидком топливе
Сертификат на котлы отопительные паровые КП
Сертификат на топки
Сертификат на щиты управления
Сертификат на скиповые подъемники
Сертификат на золоуловители (циклоны)
Сертификат на конвейеры скребковые
Сертификат на дробилки
Сертификат на клапаны предохранительные
Сертификат на бункер-накопитель механизированный
Сертификат на автоматику газовых горелок
Сертификат о происхождении товара форма СТ-1
Членство в СРО
Членство в СРО
Аттестованная технология сварки
Свидетельство аттестованной технологии сварки
Патент на отопительный котел
Патент на водогрейный котел
Патент на топку водогрейного котла
Патент на водогрейный газовый котел
Патент на водогрейный котел
Патент на топочное устройство твердотопливного котла
Патент на водогрейный котел
HEATEXPERT товарный знак
KVZR товарный знак
STEAMEXPERT товарный знак
Другая похожая продукция
Котел 150 кВт угольный
Вид топкиРучная, Колосники
Максимальная тепловая мощность, кВт150
ТопливоТвердое, Уголь
Отапливаемая площадь, м²860-1600
248 000 р. Цена с НДС
Котел на опилках
Лизинг
Вид топкиВихревая, Автоматическая
Максимальная тепловая мощность, кВт150
ТопливоОпилки
Отапливаемая площадь, м²860-1600
1 312 000 р. Цена с НДС
Котел 150 кВт на дровах
Вид топкиКолосники, ОУР
Максимальная тепловая мощность, кВт150
ТопливоДрова
Отапливаемая площадь, м²860-1600
408 000 р. Цена с НДС
Котел 150 кВт без дымососа
Вид топкиКолосники
Максимальная тепловая мощность, кВт150
ТопливоУголь
Отапливаемая площадь, м²860-1600
248 000 р. Цена с НДС
Котел 150 кВт твердотопливный
Вид топкиРучная, Колосники
Максимальная тепловая мощность, кВт150
ТопливоТвердое, Уголь
Отапливаемая площадь, м²860-1600
248 000 р. Цена с НДС
Котел уголь дрова
ТопливоУголь, Дрова, Твердое
Вид топкиКолосники, ОУР
Максимальная тепловая мощность, кВт150
Отапливаемая площадь, м²860-1600
265 000 р. Цена с НДС
Котел на древесных отходах
Вид топкиРучная, Подовая
Максимальная тепловая мощность, кВт150
ТопливоТвердое, Дрова, Древесные отходы естественной влажности
Отапливаемая площадь, м²860-1600
493 000 р. Цена с НДС
Вы просматривали эти товары
Котел уголь дрова
ТопливоУголь, Дрова, Твердое
Вид топкиКолосники, ОУР
Максимальная тепловая мощность, кВт150
Отапливаемая площадь, м²860-1600
265 000 р. Цена с НДС
Котел КВа HeatExpert
Лизинг
Вид топкиГазовая горелка
Максимальная тепловая мощность, кВт4000
ТопливоГаз
Отапливаемая площадь, м²33400-44000
1 564 000 р. Цена с НДС
Котел 600 КВт уголь дрова
ТопливоУголь, Дрова, Твердое
Вид топкиКолосники, ОУР
Максимальная тепловая мощность, кВт600
Отапливаемая площадь, м²4700-6700
518 000 р. Цена с НДС
Котел 700 КВт уголь дрова
ТопливоУголь, Дрова, Твердое
Вид топкиКолосники, ОУР
Максимальная тепловая мощность, кВт700
Отапливаемая площадь, м²5400-7700
552 000 р. Цена с НДС
background